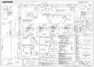
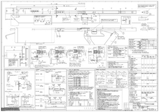
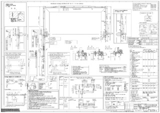
Scissors OL 90 N

Standard leaf bracket for OL 90 N / OL 95 * Standard leaf bracket suitable for OL 90 N / OL 95 scissors on wooden windows with Euro groove and for use on semi-circular arch and segmental arch windows.

Application Areas

  • For rectangular windows
  • Installation on wooden windows with Euro groove
  • Leaf installation

Downloads

Variants & Accessories

Contact

UK GEZE Central +44-1543-443000 Hotline for architects +44-1543-443013 GEZE Service +44-845-017-1593