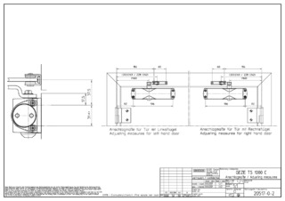
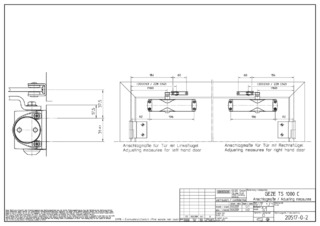
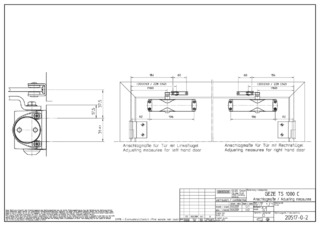
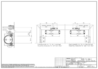
Closer body TS 1000 C * Basic body for overhead door closer with link arm EN 2/3
- Two different variable closing force settings, which can be selected simply by turning the bearing block for the link arm
- Closing speed can be adjusted from the side via valve
- Latching action can be adjusted from the side via valve
- Door closer, can be used for right and left hand doors
Application Areas
- Right and left single-action doors for interior use
- Single-action doors up to 950 mm leaf width
- Door leaf installation hinge side and transom installation opposite hinge side
Technical data
| Closer body TS 1000 C | |
| Closing force in accordance with EN 1154 | EN 2/3 |
| Leaf width (max.) | 950 mm |
| Type of installation | Door leaf installation hinge side, Transom installation opposite hinge side |
| Opening angle (max.) | 180 ° |
| Identical design for DIN left and DIN right | Yes |
| Standard conformity | EN 1154:1996/A1:2002/AC:2006 |
| Suitability for fire protection doors | Yes |
| Length | 215 mm |
| Width | 44 mm |
| Height | 52 mm |
| Closing force adjustable | Yes, via installation |
| Adjustable closing speed | Yes |
| Latching action adjustable | Yes, via valve |
| Back check integrated | No |
| Position of closing force adjustment | Mounting position |
Downloads
LABELLING OBLIGATION: © GEZE GmbH
* Notice about the products displayed
The products mentioned above may vary in form, type, characteristics and function (design, dimensions, availability, approvals, standards etc.) depending on the country. For questions please contact your GEZE contact person or send us an E-Mail .