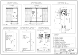
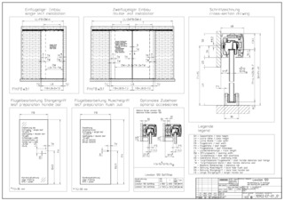
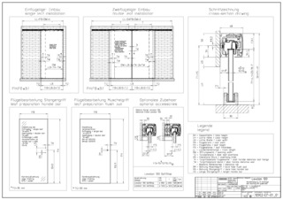
Levolan 120 complete set * Levolan sliding door fitting for leaf weights up to 120 kg
- Design sliding door fitting for glass and timber leaves
Application Areas
- For leaf weights up to 120 kg
- For glass elements toughened safety of 10 and 12 mm as well as laminated safety glass of up to 12 mm (with additional LSG kit) and timber leaves up to a weight of 120 kg
- For wall and ceiling installation
- Suitable for interior use
Installation situations in reference objects and videos
Technical data
| Levolan 120 complete set | |
| Leaf material | Glass, Plastic, Metal, Wood |
| Leaf weight (max.) | 120 kg |
| Leaf weight (max.) with draw-in damper | 120 kg |
| Number of leaves | 1-leaf, 2-leaf |
| Test cycles | 100000 |
| Corrosion protection class | 3 |
| Pane thickness | 10 - 12 mm |
| Type of installation | Wall, Ceiling |
| Side panel | Yes |
Downloads
LABELLING OBLIGATION: © GEZE GmbH
LABELLING OBLIGATION: © GEZE GmbH
Variants & Accessories
* Notice about the products displayed
The products mentioned above may vary in form, type, characteristics and function (design, dimensions, availability, approvals, standards etc.) depending on the country. For questions please contact your GEZE contact person or send us an E-Mail .