TS 5000 EFS complete package * Overhead door closer with guide rail EN 3-6 with electric free swing function
- Closing force can be variably adjusted from the front
- Visual closing force display ensures correct setting
- Closing seed can be adjusted from the front via valve
- Latching action can be adjusted from the front via valve
- Electric free swing function
- Door closer, can be used for right and left hand doors
Application Areas
- Fire and smoke protection doors
- Right and left single-action doors
- Single-action doors up to 1400 mm leaf width
- Door leaf installation hinge side
- Hold-open systems with integrated hold-open function with free swing
- Barrier-free access in accordance with DIN 18040
Technical data
| TS 5000 EFS complete package | |
| Closing force in accordance with EN 1154 | EN 3 - 6 |
| Leaf width (max.) | 1400 mm |
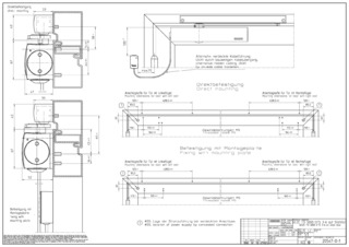
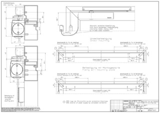
| Type of installation | Door leaf installation hinge side |
| Opening angle (max.) | 180 ° |
| Identical design for DIN left and DIN right | Yes |
| Input voltage | 24 V DC |
| Electrical power consumption | 1 W |
| Duty rating | 100 % |
| Residual ripple | 20 % |
| IP rating | IP20 |
| Standard conformity | EN 1154:1996/A1:2002/AC:2006, EN 1155 |
| Suitability for fire protection doors | Yes |
| Mounting plate with hole pattern in accordance with EN 1154 supplement | Yes |
| Length | 327 mm |
| Width | 47 mm |
| Height | 60 mm |
| Free swing area | 85 ° - 160 ° |
| Closing force adjustable | Yes, stepless |
| Adjustable closing speed | Yes |
| Latching action adjustable | Yes, via valve |
| Back check integrated | No |
| Position of closing force adjustment | Front |
| Visual closing force display | Yes |
| Safety valve againts overload | Yes |
| Thermo-control valves | Yes |
| opening restrictor upgradable | Yes |
| Hold-open function | Electrically, for free swing function |
Downloads
LABELLING OBLIGATION: © GEZE GmbH
LABELLING OBLIGATION: © GEZE GmbH
Variants & Accessories
* Notice about the products displayed
The products mentioned above may vary in form, type, characteristics and function (design, dimensions, availability, approvals, standards etc.) depending on the country. For questions please contact your GEZE contact person or send us an E-Mail .