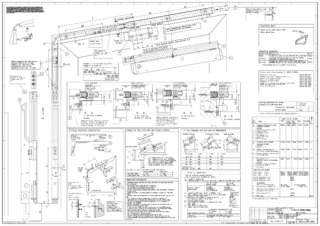
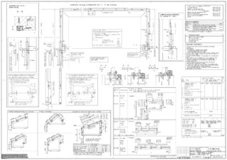
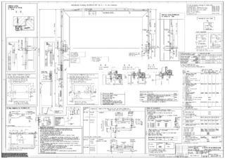
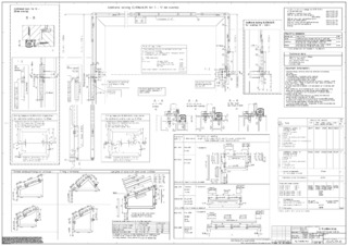
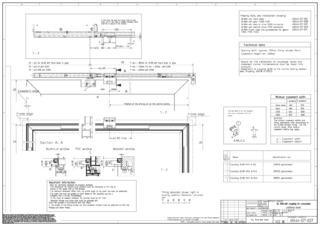
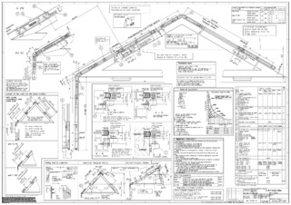
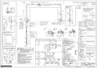
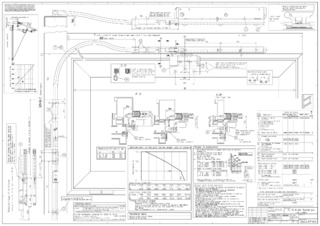
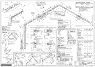
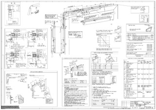
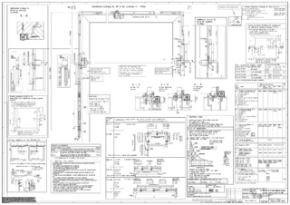
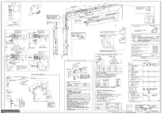
OL 90 N top-hung outward-opening

Hand lever * Hand lever for the operation of the window

Downloads

Variants & Accessories

Contact

UK GEZE Central +44-1543-443000 Hotline for architects +44-1543-443013 GEZE Service +44-845-017-1593