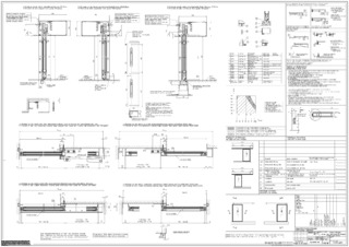
ECdrive T2-FR * Automatic linear sliding door system in escape and rescue routes for doors up to 140 kg leaf weight
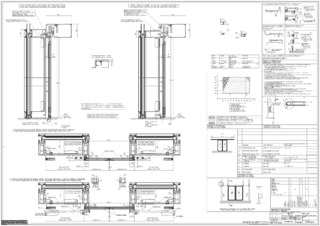
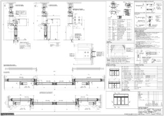
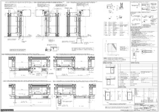
- Slim design with a cover height of just 100 mm for greater creative freedom
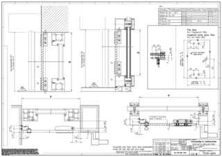
- With double roller carriage and GCprofile Therm up to 140 kg leaf weight
- Efficient installation thanks to pre-drilled tracks and elongated holes
- Full floor guide available for controlled diversion of rainwater
- Integrated cable routings make cable laying easier
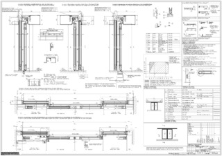
- Can be networked, and integrated into the building automation via open standard (BACnet)
- Independent error recognition and recording
- Freely configurable inputs and outputs for different functions
- Integrated rechargeable battery for emergency opening in the event of a power failure
- Self-cleaning roller carriage reduces maintenance effort and costs
- Various mechanical and electrical locks are optionally available
- Service interface for easy maintenance
With its streamlined design, the new ECdrive T2-FR guarantees new design possibilities with an outstanding price-performance ratio. It can be combined with the GCprofile Therm profile system, to further improve energy efficiency.
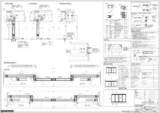
Application Areas
- Single and double leaf sliding door systems along escape and rescue routes
- Interior and exterior doors with high access frequency
- Complete solution for entrance areas with GCprofile Therm and fanlight
- If extra impermeability or energy efficiency are needed
- Opening widths from 700 to 3000 mm possible
- Door leaf weight of up to 140 kg per leaf
- Suitable profile systems are fine-framed profile systems with insulating and MONO glass, GCprofile Therm, toughened safety glass clamping profile, on-site frame and wooden leaves
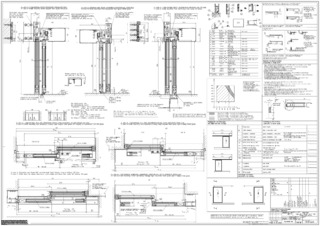
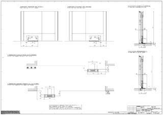
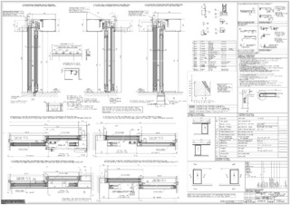
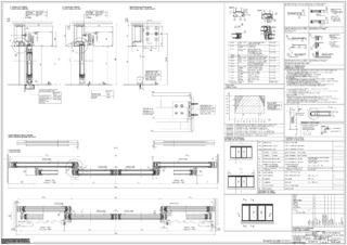
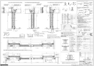
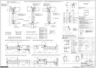
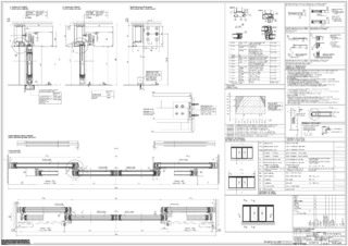
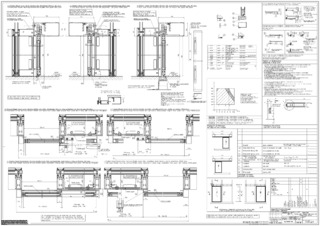
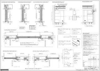
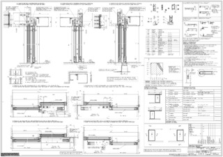
Installation situations in reference objects and videos
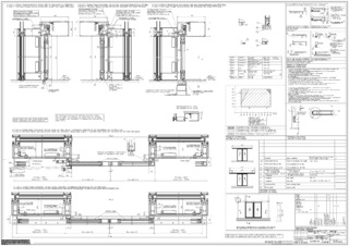
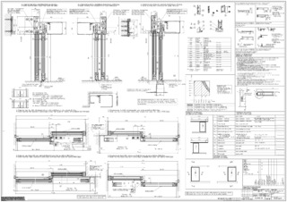
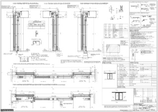
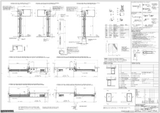
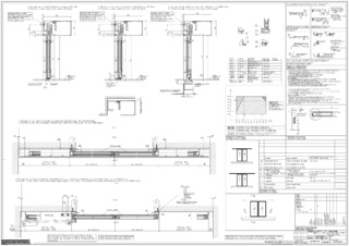
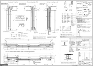
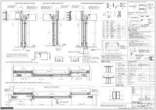
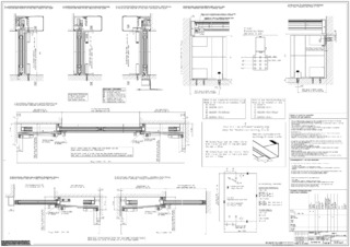
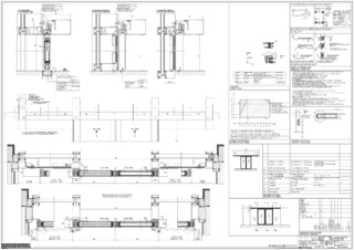
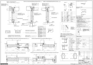
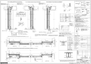
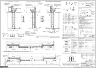
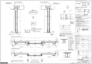
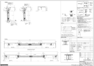
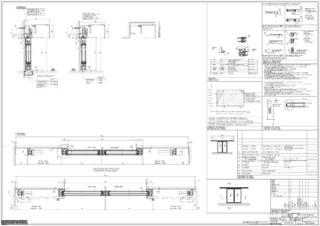
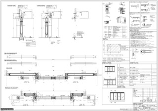
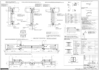
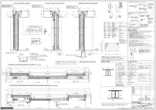
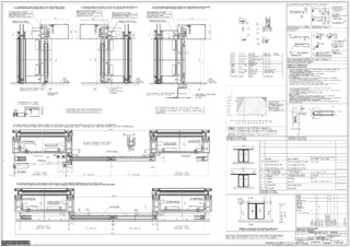
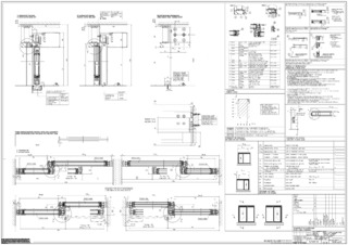
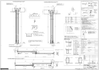
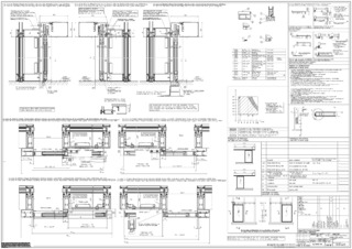
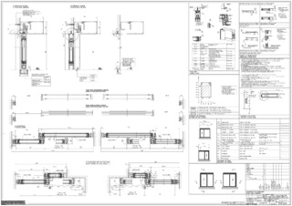
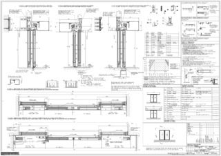
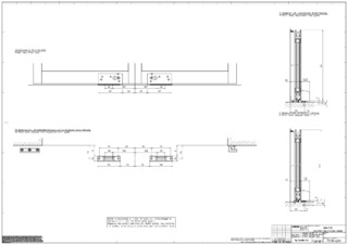
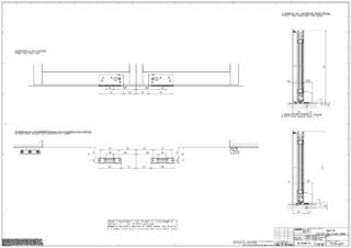
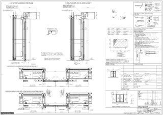
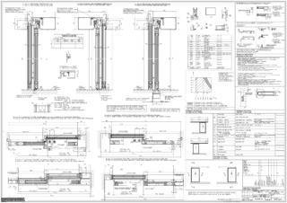
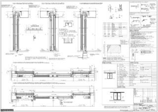
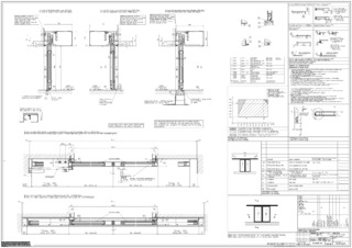
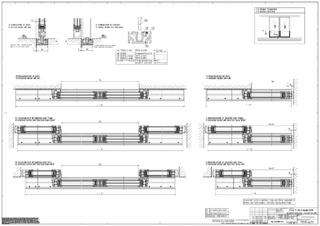
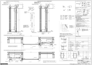
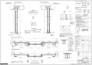
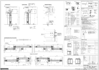
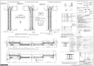
Technical data
| ECdrive T2-FR | |
| For 1-leaf door systems | Yes |
| For 2-leaf door systems | Yes |
| Fine-framed insulating glass | Yes |
| MONO glass fine-framed | Yes |
| ESG clamping profile | Yes |
| Framed leaf (on site) | Yes |
| Height | 100 mm |
| Depth | 190 mm |
| Leaf weight (max.) 1-leaf | 120 kg |
| Leaf weight (max.) 1-leaf with GCprofile Therm and double roller carriage | 140 kg |
| Leaf weight (max.) 2-leaf | 120 kg |
| Leaf weight (max.) 2-leaf with GCprofile Therm and double roller carriage | 140 kg |
| Opening width 1-leaf | 700 mm - 3000 mm |
| Opening width 1-leaf with GCprofile Therm | 1500 mm |
| Opening width 2-leaf | 900 mm - 3000 mm |
| Opening width 2-leaf with GCprofile Therm | 3000 mm |
| Service temperature | -15 - 50 °C |
| IP rating | IP20 |
| Disconnection from mains | Main switch in the drive |
| Standard conformity | AutSchR, DIN 18650, DIN EN ISO 13849: Performance Level D, EN 16005 |
Downloads
LABELLING OBLIGATION: © Robert Sprang / GEZE GmbH
LABELLING OBLIGATION: © Robert Sprang / GEZE GmbH
LABELLING OBLIGATION: © Lorenz Frey / GEZE GmbH
LABELLING OBLIGATION: © Robert Sprang / GEZE GmbH
LABELLING OBLIGATION: © Robert Sprang / GEZE GmbH
LABELLING OBLIGATION: © GEZE GmbH
LABELLING OBLIGATION: © GEZE GmbH
LABELLING OBLIGATION: © GEZE GmbH
LABELLING OBLIGATION: © GEZE GmbH
Variants & Accessories
* Notice about the products displayed
The products mentioned above may vary in form, type, characteristics and function (design, dimensions, availability, approvals, standards etc.) depending on the country. For questions please contact your GEZE contact person or send us an E-Mail .