Power lock * Locking drive in combination with Slimchain, Powerchain or E 250 NT
- System solution for locking in combination with Slimchain, Powerchain and E 250 NT window drives from the the IQ windowdrive series
- Automatic locking of the window through access to the window transmission
- Meets high specifications in terms of wind load, impermeability to driving rain and air tightness
- Electronic position detection that unlocks the window before opening it
- Electronic end-position cut-off offers protection against incorrect operation and overloading
- High tensile and compressive force for up to six locking points
- Locking and unlocking in six seconds
- Synchronization of up to two Power lock and four window drives from the IQ windowdrive series possible
- Tested in combination with window drives from the IQ windowdrive series in accordance with EN 12101-2 (SHEV)
Application Areas
- Additional safety and protection against weather conditions
- For natural ventilation, smoke and heat extraction systems, natural smoke and heat extraction device (SHEV)
- Can be used in the exhaust air and air inlet system
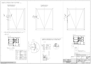
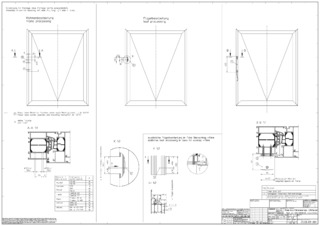
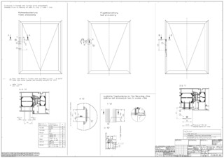
- Inward-opening windows with bottom-hung, side-hung, top-hung, swing and vertically centre pivoted leaves
- Installation on wooden, PVC or metal windows
- Leaf or frame installation
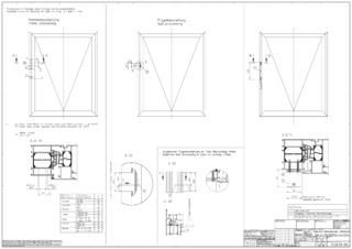
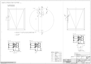
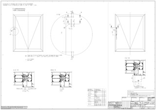
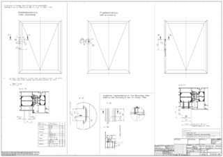
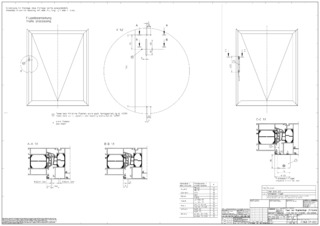
Technical data
| Power lock | |
| Dimensions | 430 x 34 x 36 mm |
| Space needed on frame (min.) | Necessary space should be determined individually |
| Space requirement on leaf (min.) | Necessary space should be determined individually |
| Opening speed ventilation | 3.6 mm/s |
| Compressive force | 600 N |
| Tensile force | 600 N |
| Voltage at operation | 24 V ± 25 % |
| Operating voltage | 24 V DC |
| Current consumption | 1.5 A |
| Power consumption | 36 W |
| Duty rating | 30 % |
| Connector cable length | 2 m |
| Special length of connector cable | 5 m, 7.5 m |
| Min. core cross section | 0.75 mm² |
| Number of cores | 4 cores |
| Service temperature | -5 - 70 °C |
| IP rating | IP42 |
| protection rating | III |
| Adjustable opening speed (ventilation) | Yes |
| NSHEV tested | Yes |
| KNX ability | Yes |
| Bottom-hung window INWARD-opening frame installation | Yes |
| Bottom-hung window inward opening leaf installation | Yes |
| Side-hung window INWARD-opening frame installation | Yes |
| Side-hung window INWARD-opening door leaf installation | Yes |
| Top-hung window INWARD-opening frame installation | Yes |
| Top-hung window INWARD-opening leaf installation | Yes |
Downloads
LABELLING OBLIGATION: © Jürgen Biniasch / GEZE GmbH
LABELLING OBLIGATION: © Jürgen Biniasch / GEZE GmbH
LABELLING OBLIGATION: © GEZE GmbH
LABELLING OBLIGATION: © Lorenz Frey / GEZE GmbH
LABELLING OBLIGATION: © GEZE GmbH
LABELLING OBLIGATION: © GEZE GmbH
LABELLING OBLIGATION: © GEZE GmbH
LABELLING OBLIGATION: © GEZE GmbH
LABELLING OBLIGATION: © GEZE GmbH
Variants & Accessories
* Notice about the products displayed
The products mentioned above may vary in form, type, characteristics and function (design, dimensions, availability, approvals, standards etc.) depending on the country. For questions please contact your GEZE contact person or send us an E-Mail .